---
title: "Gesten - Engholmvej"
description: "Velbeliggende erhvervsgrunde i Gesten kun 4 km fra motorvej E20"
date: "2024-06-14"
created: "2024-03-18"
tags:
  - "Erhvervsgrunde i Gesten"
  - "erhvervsarealer i Gesten"
  - "erhvervsjord i Gesten"
  - "byggegrunde i Gesten"
---

[Hjem](https://erhvervsvejen.inst.vejen.dk/)

                    [Erhvervsgrunde](https://erhvervsvejen.inst.vejen.dk/erhvervsgrunde)

                [Gesten - Engholmvej](https://erhvervsvejen.inst.vejen.dk/erhvervsgrunde/gesten-engholmvej)

# Gesten - Engholmvej

![](https://erhvervsvejen.inst.vejen.dk/i/MOLIRIMEDIA/704342d0-a3fa-4472-4f1e-08dc401930b3?width=800)

## Erhvervsgrunde til fordelagtige priser - kun 4 km fra E20

I Gesten finder du gode, velbeliggende erhvervsgrunde, der ligger relativt tæt på afkørsel 67 på motorvej E20 mellem Kolding og Esbjerg.

Her er virksomhederne Scagro A/S og Gesten Bådaptering ApS blandt dine nærmeste naboer. Erhvervsgrundene ligger i et roligt område tæt på naturen. I Gesten sætter landbrugserhvervet stadig sit præg. Det er et aktivt lokalområde med ca. 1.500 borgere i hele sognet. I byen finder du både en dagligvareforretning, lægehus, børnecenter og fritidsfaciliteter samt fine boliger og kommende byggegrunde til dine medarbejdere.

Du finder Gesten syv kilometer nord for Vejen, der er hovedbyen i Vejen Kommune. Der bor ca. 10.000 borgere i Vejen, der blandt andet er kendt for en god handelsby med mange specialbutikker samt Vejen Kunstmuseum og Vejen Idrætscenter.

## Areal

Erhvervsgrunde i Gesten fra minimum 1.500 m^2^ og op til 11.000 m^2^

## Mindstepris

Pris pr. m^2^ 38,00 kr. + moms.

Prisen er eksklusiv kloaktilslutning og tilslutningsafgifter til øvrige forsyningsselskaber.

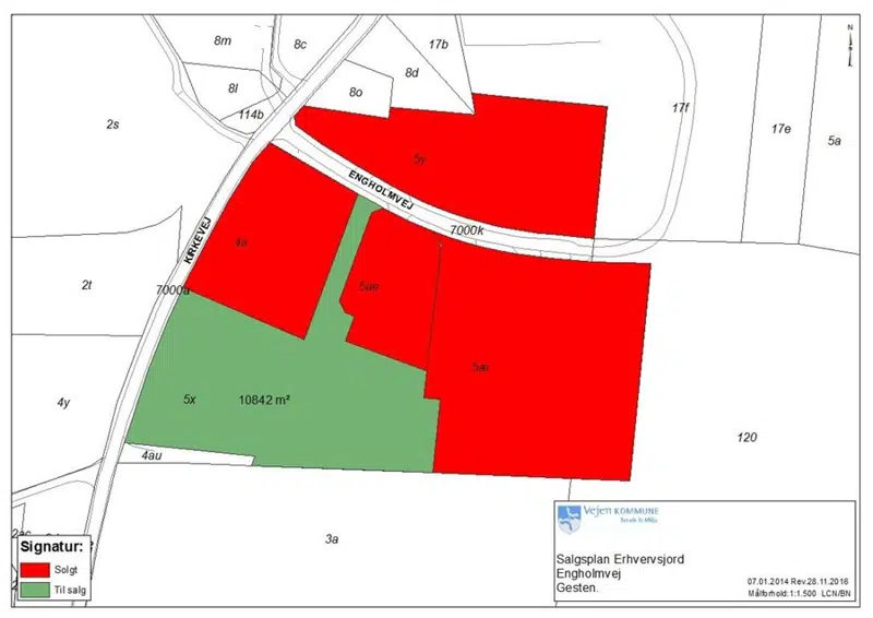
## Salgskort

![](https://erhvervsvejen.inst.vejen.dk/i/MOLIRIMEDIA/b45b89e7-697b-4e48-4ed3-08dc401930b3?width=800)

                            [Salgskort (PDF) Gesten - Engholmvej](https://erhvervsvejen.inst.vejen.dk/p/MOLIRIMEDIA/77d14b82-b016-4f95-4ee3-08dc401930b3)

                            [Lokalplan 247](https://dokument.plandata.dk/20_1466921_APPROVED_1338288541045.pdf)

## Værd at vide om erhvervsgrunde

###

                                    Prisoversigt - alle erhvervsgrunde i Vejen Kommune

## Priser på erhvervsarealer i Vejen Kommune

Vejen Kommune er med sin centrale beliggenhed i Sydjylland og med sin gode infrastruktur ideel til placering af erhvervsbyggeri. Nedennævnte erhvervsgrunde udbydes til salg med følgende mindstepriser pr. m^2^, der er gældende fra 1. januar 2026.

### Vejen

Oversigt| Beliggenhed | Matrikel nr. | Antal m^2^ | Mindstepris / m^2^ |
| --- | --- | --- | --- |
| Vestermarksvej | 1ca, 108, 1bf, 43f, 41d, 44k, 45v, 45s, 45u, 9cq, <br>9i, 9k, 46f, 46at, 9be, 40a, 46au og 46h | 307.230 | Kr. 158,00 - Zone 1 jord <br>Kr. 133,00 - Zone 2 jord |
| Industrivej Vest /<br>Sverigesvej /<br>Norgesvej | 9ce, 9cd, 9ck, 9cc og 9co | 157.840 | Kr. 56,00 |

### Brørup

Oversigt| Beliggenhed | Matrikel nr. | Antal m^2^ | Mindstepris / m^2^ |
| --- | --- | --- | --- |
| Stensvang Allé | 2af | 6.500 | Kr. 107,00 - Zone 1 jord |
|  | 2af | 10.926 | Kr. 82,00 - Zone 2 jord |
| Stenbro Allé | 3z | 6.500 | Kr. 50,00 - Zone 2 jord |
|  | 3ao og 3aq | 10.300 | Kr. 40,00 - Zone 3 jord |
| Esbjergvej | 3af | 7.500 | Kr. 40,00 |

### Holsted

Beliggenhed Matrikel nr. Antal m^2^ Mindstepris / m^2^

Oversigt| Beliggenhed | Matrikel nr. | Antal m^2^ | Mindstepris / m^2^ |
| --- | --- | --- | --- |
| Vestermarken | 5go og 5gx | 16.863 | Kr. 40,00 \* |
| Frodesvej | 7ag | 4.031 | Kr. 53,00 \* |
| Energivej | 7k og 7p | 12.624 | Kr. 162,50 \*\* |
| Energivej | 5r | 23.100 | Kr. 76,00 |
| Taurusvej | 5a | 155.140 | Kr. 76,00 |

### Rødding

Oversigt| Beliggenhed | Matrikel nr. | Antal m^2^ | Mindstepris / m^2^ |
| --- | --- | --- | --- |
| Nordre Industrivej | 1676, 1364 | 18.649 | Kr. 40,00 |

### Jels

Oversigt| Beliggenhed | Matrikel nr. | Antal m^2^ | Mindstepris / m^2^ |
| --- | --- | --- | --- |
| Finnmarken | 1256 | 96.800 | Kr. 40,00 |

### Skodborg

Oversigt| Beliggenhed | Matrikel nr. | Antal m^2^ | Mindstepris / m^2^ |
| --- | --- | --- | --- |
| Industriparken Nord | 17a | 16.670 | Kr. 40,00 |

### Gesten

Oversigt| Beliggenhed | Matrikel nr. | Antal m^2^ | Mindstepris / m^2^ |
| --- | --- | --- | --- |
| Engholmvej | 5x | 10.842 | Kr. 38,00 |

### Bække

Oversigt| Beliggenhed | Matrikel nr. | Antal m^2^ | Mindstepris / m^2^ |
| --- | --- | --- | --- |
| Fredsholmvej | 9bs | 13.800 | Kr. 41,00 |

Alle priser tillægges 25 % moms.
Priserne er eksklusiv tilslutningsbidrag til kloakforsyningen samt eksklusiv tilslutningsbidrag til øvrige forsyningsselskaber.
\* Prisen er inklusiv tilslutningsbidrag til kloakforsyningen.
\*\* Prisen er inklusiv moms og tilslutningsbidrag til kloakforsyningen.

Nærmere oplysninger og salgsbetingelser kan rekvireres ved henvendelse til Lene Czyz Nielsen, Teknik & Miljø

Der tages forbehold for trykfejl.

Priserne for erhvervsjord i Vejen Kommune kan også se som pdf-fil i linket her: [Priser erhvervsjord 2026](https://erhvervsvejen.inst.vejen.dk/p/ErhvervsVejen/Priser-erhvervsjord-2026-.pdf "Priser erhvervsjord 2026")

###

                                    Reservationsbetingelser

Der fremsendes en skriftlig erklæring på reservationen. Reservationen bortfalder automatisk dagen efter den anførte dato.

Det vil være muligt at reservere et erhvervsareal for en
periode på 6 måneder.

Såfremt en anden køber ønsker at erhverve arealet i reservationsperioden, vil den reserverende få en frist på to uger til at tage stilling til eventuelt køb på de på købstidspunktet gældende betingelser. Ønsker den reserverende ikke at købe arealet, bortfalder reservationen og arealet vil blive solgt til den nye køber.

Eksisterende virksomheder kan reservere jord uden tidsbegrænsning for at sikre fremtidige udvidelsesmuligheder på samme vilkår som ovenfor anført.

Kontakt Lene Czyz Nielsen tlf. 7996 6058

###

                                    Søg byggetilladelse

Før du starter et nyt byggeprojekt op, skal du [søge kommunen om tilladelse](https://erhvervsvejen.inst.vejen.dk/MOLIRIPAGE/b5e092fe-5bbe-4755-bf9a-6cf6a3f5a08f " søge kommunen om tilladelse").

Din ansøgning skal som minimum vedlægges tegninger over placering på grunden, plan og facade, samt en beskrivelse af anvendelsen og materialer.

###

                                    Kontakt en byggesagsbehandler

Når du skal i gang med et nyt byggeprojekt, er der mange ting, du skal være opmærksom på. På Vejen Kommunes hjemmeside kan du finde de informationer, du har brug for.

Vi opfordrer dig til at tage kontakt til en byggesagsbehandler inden du går i gang med dit byggeprojekt. På den måde kan du forventningsafstemme dit projekt inden du går i gang. Det gælder både i forhold til din tidsplan og så du sikrer hvad der er muligt indenfor lokalplanen i det område, du ønsker at bygge. En forhåndsdialog sikrer typisk en hurtig sagsbehandlingstid.

### Kontakt Byg & Ejendomsdata via Sikker Post

[Send Digital Post som borger](https://post.borger.dk/send/31e49274-e5ac-4724-851c-d50c72eeea5e/790115cf-6095-49a4-85ca-1c78b49d6060/ "Send Digital Post om byggeri via borger.dk")

[Send Digital Post som virksomhed](https://virk.dk/digitalpost/new/31e49274-e5ac-4724-851c-d50c72eeea5e/790115cf-6095-49a4-85ca-1c78b49d6060/ "Send Digital Post om byggeri via virk.dk")

### Søg en byggetilladelse via Byg & Miljø

[Søg en byggetilladelse](https://www.bygogmiljoe.dk/ "Søg en byggetilladelse")

###

                                    Planlægning

På [Planportalen](https://erhvervsvejen.inst.vejen.dk/MOLIRIPAGE/20762177-0792-4e45-a384-14fa61560cfc "Planportalen") har vi samlet et bredt udvalg af vores fysiske planer på ét sted.

###

                                    Kontakt salgsmedarbejder Lene Czyz Nielsen

Ønsker du at købe en ledig erhvervsgrund eller vil du vide mere om dine muligheder, er du meget velkommen til at kontakte vores salgsmedarbejder.

### Ring til Lene Czyz Nielsen

[79 96 60 58](tel:79%2096%2060%2058)

### Skriv til Lene Czyz Nielsen via Sikker Post

[Send Digital Post om byggegrunde (som borger)](https://post.borger.dk/send/31e49274-e5ac-4724-851c-d50c72eeea5e/824f09df-3a45-4d0b-823f-5039e0824d8c/)

[Send Digital Post om byggegrunde (som virksomhed)](https://virk.dk/digitalpost/new/31e49274-e5ac-4724-851c-d50c72eeea5e/824f09df-3a45-4d0b-823f-5039e0824d8c/)
